SOLD : Lot 94B Rancho Real Subdivision, 5.23 Ac Leakey, Tx 78873
• Mountain Views
• Well
• Bluff Crk Frontage
• Easy Access
• No Restrictions
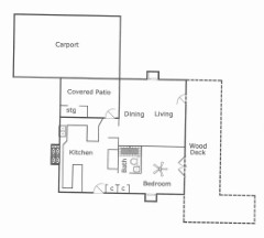
Hill Country cabin on Bluff Creek! What a great find! This little 1B/1Ba cabin has all of the hill country charm and unique features that makes any buyer’s imagination run wild! Spacious living, fireplace and dining opens into a very functional kitchen that leads into a nice size bedroom, also with a fireplace, bathroom and Frch doors to the front deck. Solid wood cabinets and windows with views all around the cabin gives the space for weekend or permanent living. The outdoor space consists of a covered picnic area, a small garden space and fenced yard of no maintenance river gravel and a unique mobile deck space over storage area below. There are several rv hook-ups allowing for more friends and family to enjoy the property with you! The 5.23 acres is located apprx 10 miles northwest of Leakey in Rancho Real, in a canyon along a Cypress lined lake with constant level due to damming on both ends. The owners have taken a huge amount of cedar and mulched to make a great landscaped and fenced yard surrounding the cabin. Along with the main cabin, there is a very cool 1 room cottage with a restroom situated directly on the bank offering awesome cliffside views and fishing straight from the deck. A hidden staircase opens access to the bank below and room for your rowboat or kayak. This a very unique property and a must see!
• Mountain Views
• Well
• Bluff Crk Frontage
• Easy Access
• No Restrictions
Hill Country cabin on Bluff Creek! What a great find! This little 1B/1Ba cabin has all of the hill country charm and unique features that makes any buyer’s imagination run wild! Spacious living, fireplace and dining opens into a very functional kitchen that leads into a nice size bedroom, also with a fireplace, bathroom and Frch doors to the front deck. Solid wood cabinets and windows with views all around the cabin gives the space for weekend or permanent living. The outdoor space consists of a covered picnic area, a small garden space and fenced yard of no maintenance river gravel and a unique mobile deck space over storage area below. There are several rv hook-ups allowing for more friends and family to enjoy the property with you! The 5.23 acres is located apprx 10 miles northwest of Leakey in Rancho Real, in a canyon along a Cypress lined lake with constant level due to damming on both ends. The owners have taken a huge amount of cedar and mulched to make a great landscaped and fenced yard surrounding the cabin. Along with the main cabin, there is a very cool 1 room cottage with a restroom situated directly on the bank offering awesome cliffside views and fishing straight from the deck. A hidden staircase opens access to the bank below and room for your rowboat or kayak. This a very unique property and a must see!
Phone: 830-232-5242 - Fax: 830-232-4283, 1260 S US HWY 83, P.O. Box 606, Leakey, Tx. 78873, Dub Suttle, Broker
Click an image to see a larger version
House & Grounds
House Interior
Lakeside Cabin & Plats



























































